Projetos hidráulicos precisam ser pensados de maneira correta, evitando baixa pressão de água na sua residência. Chuveiros e vasos sanitários estão entre os itens que mais exigem pressão para funcionar corretamente. Quando a pressão não está adequada, o desempenho cai e, antes de pensar que o produto está com defeito, é importante analisar alguns fatores do seu projeto hidráulico.
Neste artigo, você vai entender os principais motivos da baixa pressão de água e o que observar antes de tomar qualquer decisão.
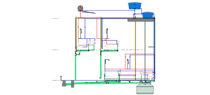
ALTURA DA CAIXA D’ÁGUA (MCA)
Primeiro, precisamos entender o que é MCA (Metros de Coluna d’Água).
MCA representa a pressão exercida pela altura da água entre a caixa d’água e o ponto de uso (torneira, chuveiro, vaso sanitário).
Quanto maior for a altura vertical, maior será a pressão.

Como funciona na prática?
Se a sua caixa d’água estiver muito próxima do ponto de uso, a pressão será menor.
Produtos hidráulicos costumam informar a pressão mínima e máxima recomendada, geralmente em:
- MCA
- KPA (quilopascal)
Essas unidades podem ser convertidas entre si.
👉 Exemplo:
Uma torneira comum de cozinha do Bazar das Torneiras costuma ter recomendação entre 3 MCA (mínimo) e 30 MCA (máximo).
Se estiver abaixo disso, a água pode sair fraca.
Se estiver acima, pode comprometer a durabilidade do produto.
SISTEMA HIDRÁULICO MAL PLANEJADO
A água precisa fazer um percurso fluido.
Quando o encanamento possui muitas curvas, emendas ou mudanças bruscas de direção, a água perde força ao longo do caminho.
Quanto mais simples e direto for o trajeto, melhor será a pressão no ponto de uso.
Se houver dúvidas, vale conversar com um profissional antes de qualquer alteração.
FONTE DE ABASTECIMENTO
Às vezes, o problema não está dentro da sua casa.
Companhias de abastecimento podem realizar:
- Manutenções na rede
- Redução de pressão
- Interrupções temporárias
- Distribuição com pressão controlada por horário
Por isso, sempre confirme com a concessionária da sua região.
SUJEIRA E ENTUPIMENTOS
Manutenção preventiva faz toda a diferença.
Com o tempo, pode haver:
- Acúmulo de sujeira nas tubulações
- Resíduos no arejador da torneira
- Obstrução nos dutos do chuveiro
A limpeza periódica garante melhor fluxo e evita falsa impressão de defeito.
VAZAMENTOS
Pequenos vazamentos também afetam a pressão.
Fique atento a:
- Furos na tubulação
- Emendas mal vedadas
- Conexões soltas
Qualquer fuga de água reduz a força no ponto final.
REGISTRO DE GAVETA
O registro de gaveta é responsável pela abertura total da água em um ambiente (ou até da casa inteira, dependendo do projeto). Se ele não estiver completamente aberto, pode estar restringindo o fluxo. Antes de qualquer troca de produto, verifique a posição do registro.
Resumindo, a água da sua casa com baixa pressão, saindo fraca, os principais motivos podem ser: altura insuficiente da caixa d’água (MCA baixo), registro parcialmente fechado, sujeira no arejador ou chuveiro, vazamentos ocultos, encanamento com muitas curvas ou redução de pressão pela companhia de abastecimento, e nem sempre o seu produto.
Até aqui, você entendeu que há diversos motivos para a baixa pressão de água da sua residência, e pode haver mais do que os citados. Se ainda tiver dúvidas, procure orientação profissional antes de realizar qualquer modificação na instalação hidráulica.

Deixe um comentário